Cisterna, restyling area mercato di via delle Province

Il Comune di Cisterna di Latina si aggiudica il punteggio e il finanziamento maggiori di tutta la regione per il progetto di riqualificazione dell’area mercatale di via delle Province.

Nove punti e 200mila euro è il risultato frutto del protocollo d’intesa tra l’amministrazione comunale con le associazioni di categoria e l’elaborato del Servizio Progettazioni e LLPP per la riqualificazione e rilancio dell’area mercatale.

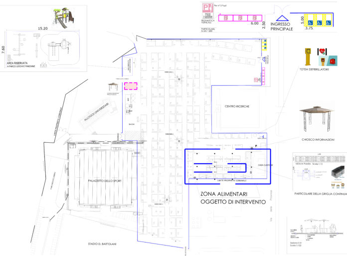
Il progetto prevede l’adeguamento alla recente normativa igienico-sanitaria e di sicurezza delle aree per l’esposizione e vendita di prodotti ittici (realizzazione di griglie di smaltimento dei gocciolamenti dei banchi per i prodotti ittici, installazione di lavabi dedicati agli operatori della pescheria, pavimentazione in resina, segnaletica), la riqualificazione e riorganizzazione degli spazi comuni con la creazione di un’area giochi per bambini con pavimentazione antitrauma, panchine per il relax, un gazebo info-point, un’area adibita per la promozione dell’area mercatale di Cisterna attraverso l’implementazione di nuovi servizi per gli utenti e la clientela in cui svolgere servizi, eventi, promozione di prodotti locali.

Inoltre verranno identificati dei parcheggi “rosa” riservati alle donne in stato di gravidanza, e installato una postazione con defibrillatore a servizio degli utenti.

L’intervento andrà a congiungersi e completare la riqualificazione urbana della viabilità di collegamento, attualmente in via di ultimazione, tra l’area di mercato e il parcheggio della stazione ferroviaria, e che consiste nella realizzazione di percorsi pedonali ed efficientamento della pubblica illuminazione tra cui l’installazione di torri faro nell’area parcheggio del mercato.

Alle associazioni dei commercianti, come da protocollo d’intesa, spetterà una serie di servizi accessori alla funzionalità dell’area, come l’apertura e chiusura, la gestione dei servizi igienici e delle aree comuni.

Il sindaco Mantini e l’assessore Cerro:

“È un’importante risultato sociale ed economico per Cisterna. Ringraziamo le associazioni di categoria per aver condiviso il progetto, l’arch. Paolo Valeri per averlo elaborato, l’assessore all’Urbanistica Santilli e il responsabile dell’Ufficio Commercio Riggi per il loro apporto: una sinergia che ha consentito l’eccellente risultato ottenuto nella graduatoria regionale e che si affianca alla realizzazione della rete di imprese in sede fissa ed imprese enogastronomiche di filiera intercomunale per un importante rilancio del settore economico, sociale e culturale del territorio”.

Il consigliere regionale Vittorio Sambucci, esprime piena soddisfazione alla luce della graduatoria uscita nelle scorse ore da via della Pisana in merito ai vincitori del bando regionale sulla riqualificazione delle aree mercato. Una graduatoria che vede vincitori dell’importo massimo sia il comune di Cisterna che quello di Latina:

“Cisterna e Latina risultano entrambe vincitrici dell’importo massimo previsto dal bando per la riqualificazione delle aree mercato da parte della Regione Lazio. 200 mila euro da destinare a opere di miglioramento per le aree del commercio ambulante, settore fondamentale nel nostro tessuto economico e sociale. Un lavoro sinergico che ha portato a questo ottimo risultato.

“In entrambi i comuni abbiamo seguito da vicino l’iter della domanda, con il supporto dei rappresentanti della Fivag CISL e ANA di Cisterna. Una collaborazione fondamentale che ha dato sostegno all’opera dei comuni interessati alla partecipazione al bando di gara. Indispensabile in tal senso anche il lavoro, puntuale ed ineccepibile, degli uffici comunali a cui va dato pieno merito. Credo fortemente nell’importanza o meglio ancora nella necessità di una collaborazione proficua fra tutti le parti in causa che possono collaborare al fine di portare a casa il migliore risultato per le nostre comunità. Con questo spirito intendo proseguire il mio mandato da consigliere regionale certo che il coinvolgimento e la cooperazione siano il giusto modus operandi a beneficio delle nostre realtà locali”.