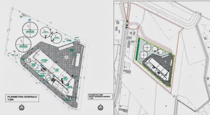
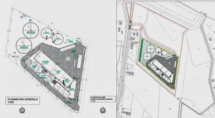
Autorizzazione unica in favore della Recall Latina srl per la realizzazione di strutture funzionali all’esercizio di digestione anerobica della frazione umida dei rifiuti urbani, speciali e sottoprodotti per la produzione di biometano. La Provincia di Latina al termine dell’iter avviato nel 2015, e a seguito della conclusione positiva della conferenza dei servizi appositamente indetta, ha rilasciato nei giorni scorsi l’autorizzazione che consente all’impianto di via delle Industrie a Latina Scalo a trattare 35mila tonnellate all’anno. La società, con sede legale nel capoluogo pontino, in piazza del Mercato 11, risulta ora autorizzata alla gestione dell’impianto per la durata di 15 anni.
Nella determina dirigenziale del settore Ecologia e Ambiente della Provincia di Latina, firmata dalla dottoressa Nicoletta Valle, si precisa che la Regione Lazio a seguito dell’espletamento del procedimento di Via ha concluso l’istruttoria con 38 punti di prescrizione, condizionando l’esecutività del procedimento stesso a verifica di ottemperanza rispetto a diversi aspetti, tra cui la mitigazione dell’impatto dell’impianto sul nucleo abitativo presente ad ovest soggetta a nulla osta sanitario da parte del Comune di Latina. Gli atti autorizzativi sono stati pubblicati ieri all’albo pretorio della Provincia di Latina.









